︎
Danza Cotignola Staricco
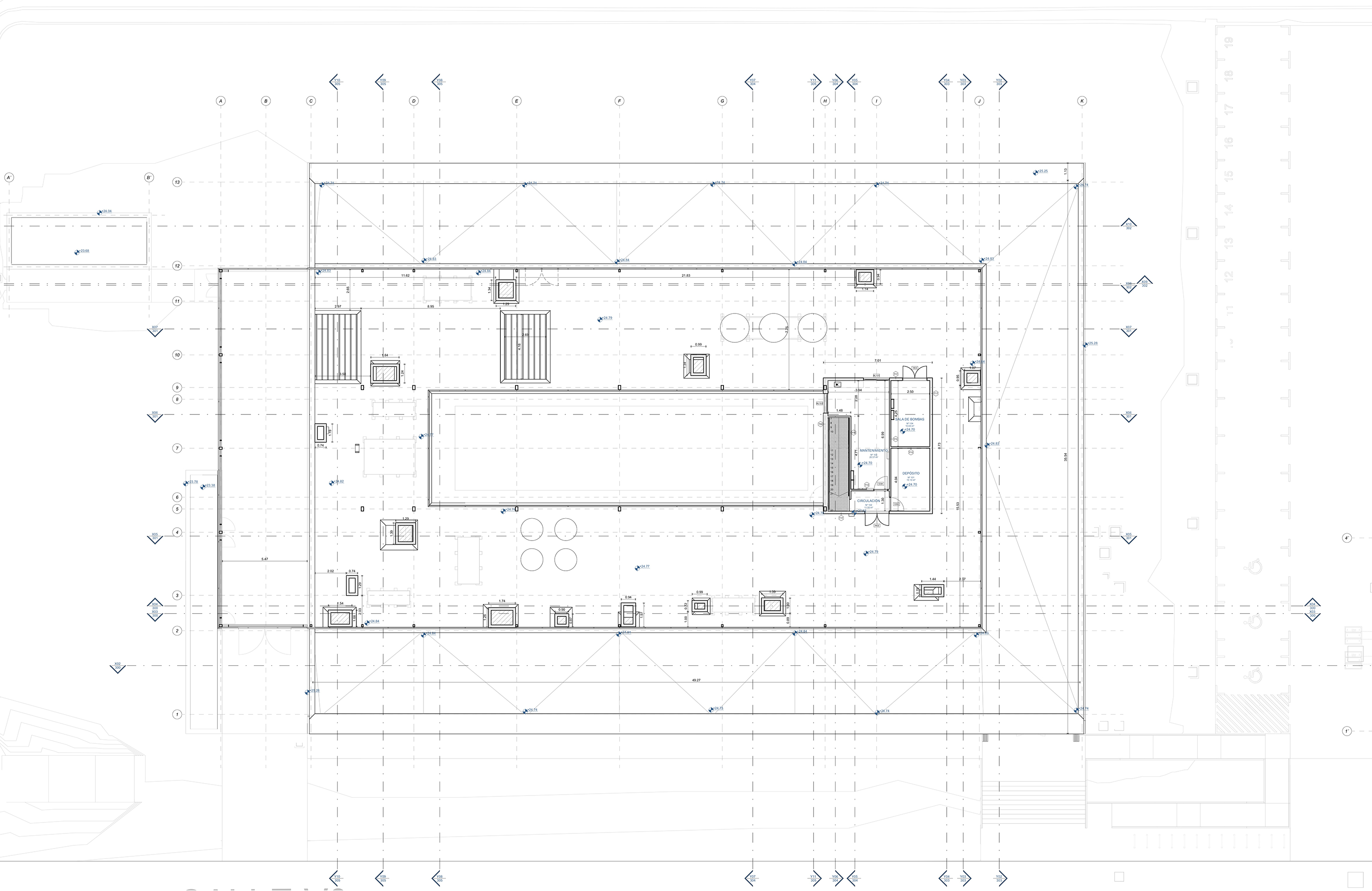
Laboratorio de Bromatologia
Memoria
|
PDF
Proyectos
Oficina
Contacto
fmr.uy
︎
︎