︎
Danza Cotignola Staricco
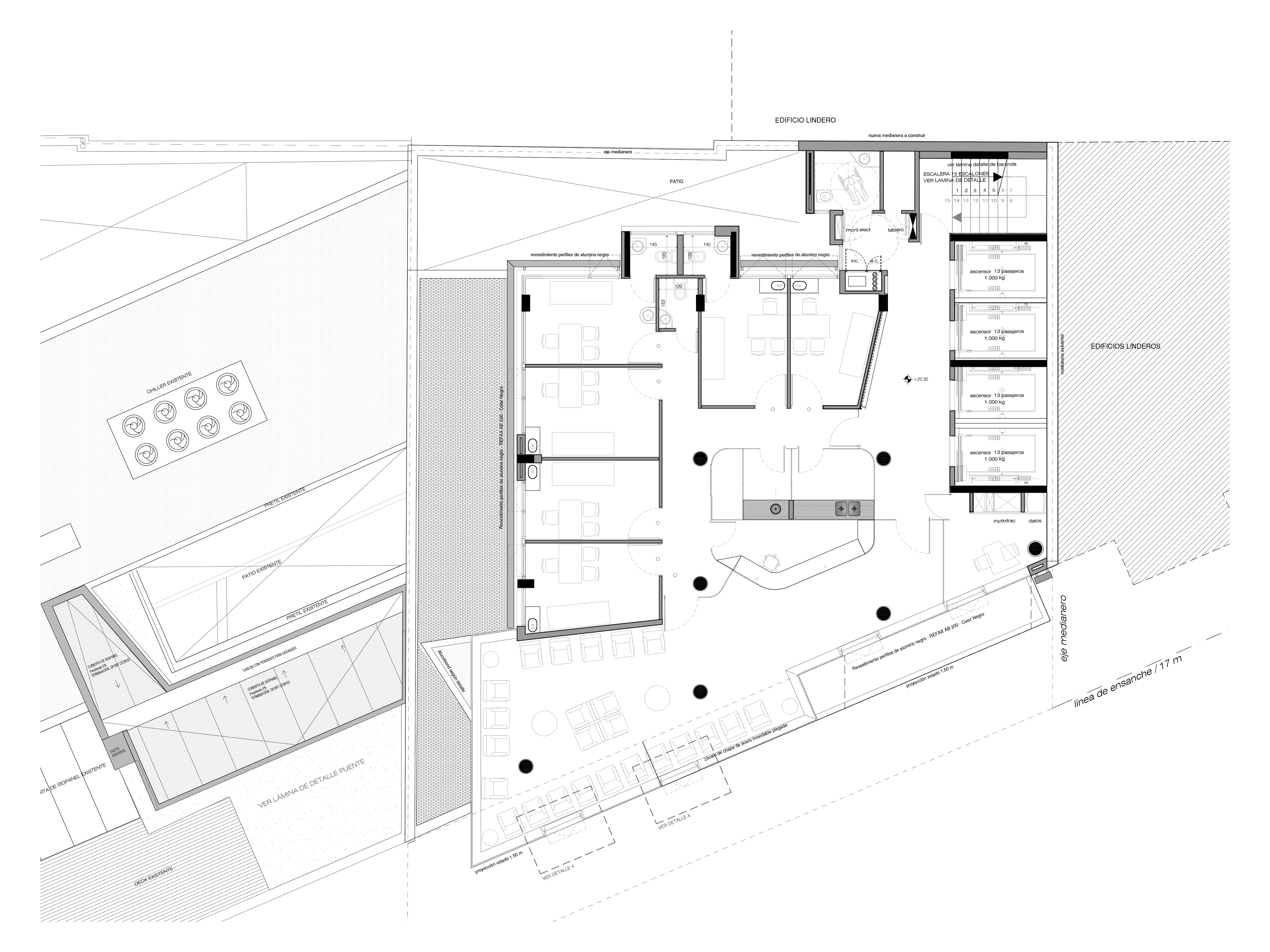
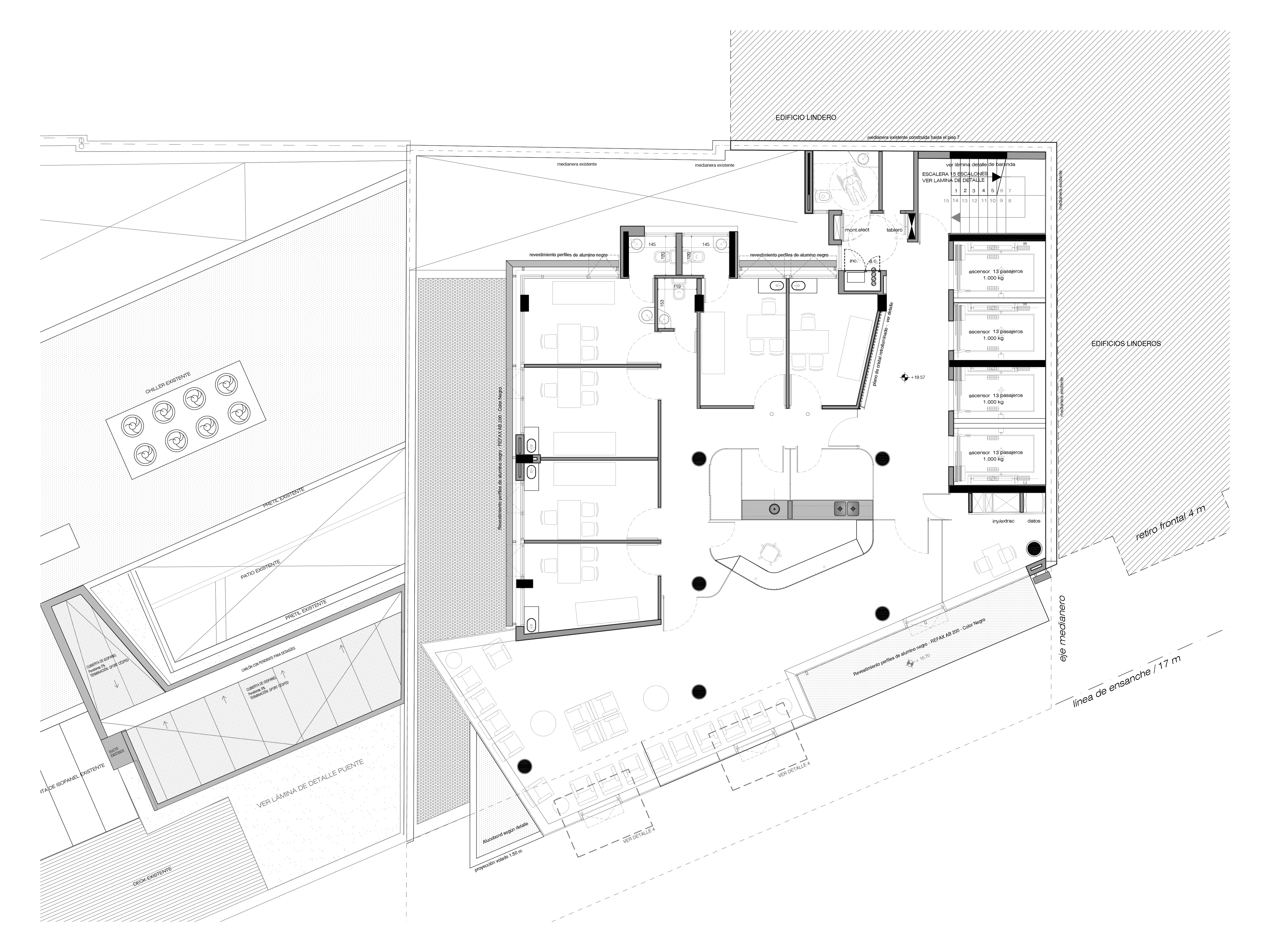
Torre de Consultorios Hospital Británico
Memoria
|
PDF
Proyectos
Oficina
Contacto
fmr.uy
︎
︎