︎
Danza Cotignola Staricco
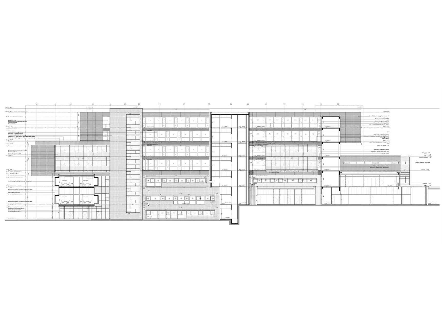
Sanatorio Cantegril de Punta del Este
Memoria
|
PDF
Proyectos
Oficina
Contacto
fmr.uy
︎
︎