︎
Danza Cotignola Staricco
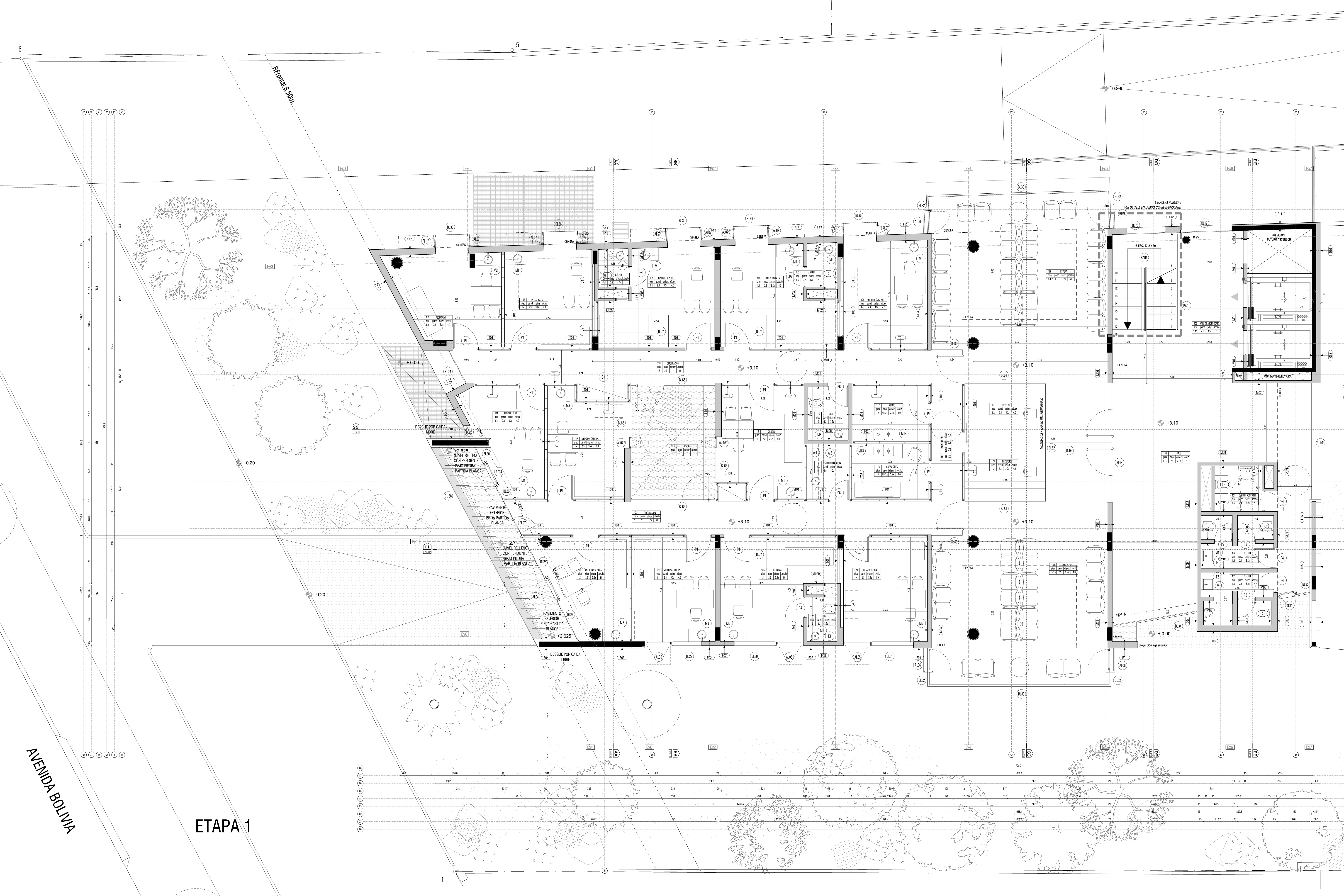
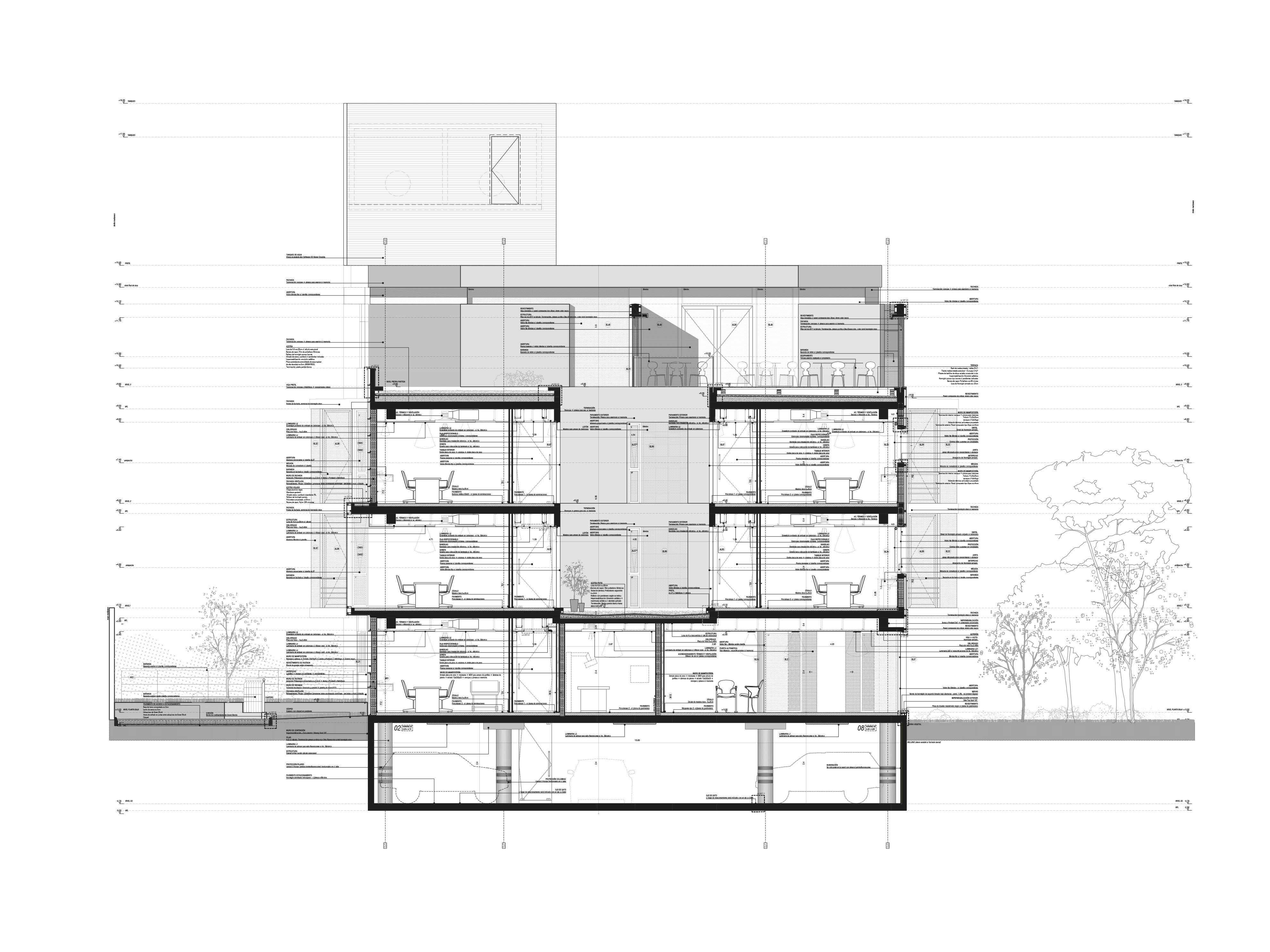
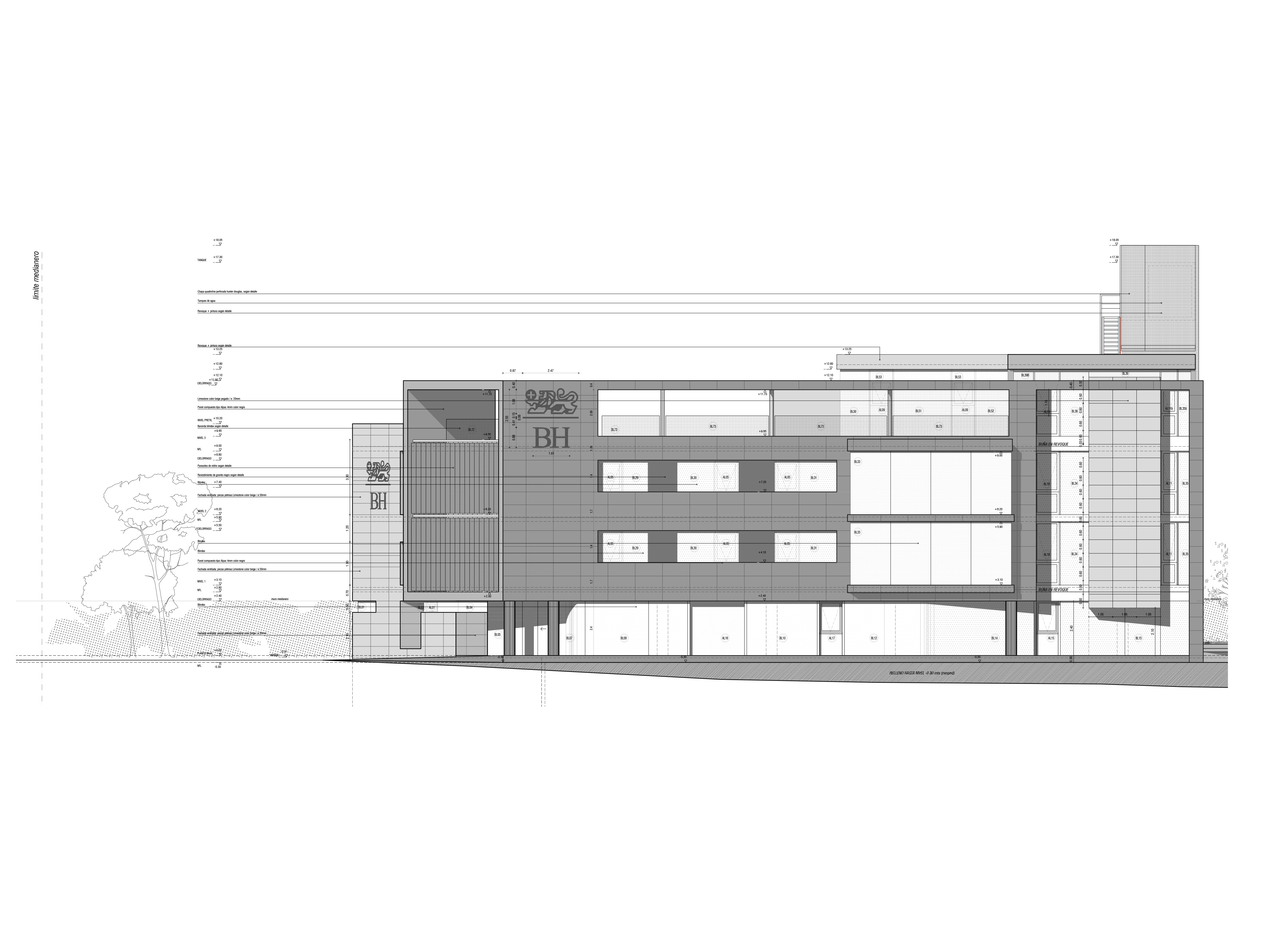
Hospital Británico Policlínico Carrasco
Memoria
|
PDF
Proyectos
Oficina
Contacto
fmr.uy
︎
︎