︎
Danza Cotignola Staricco
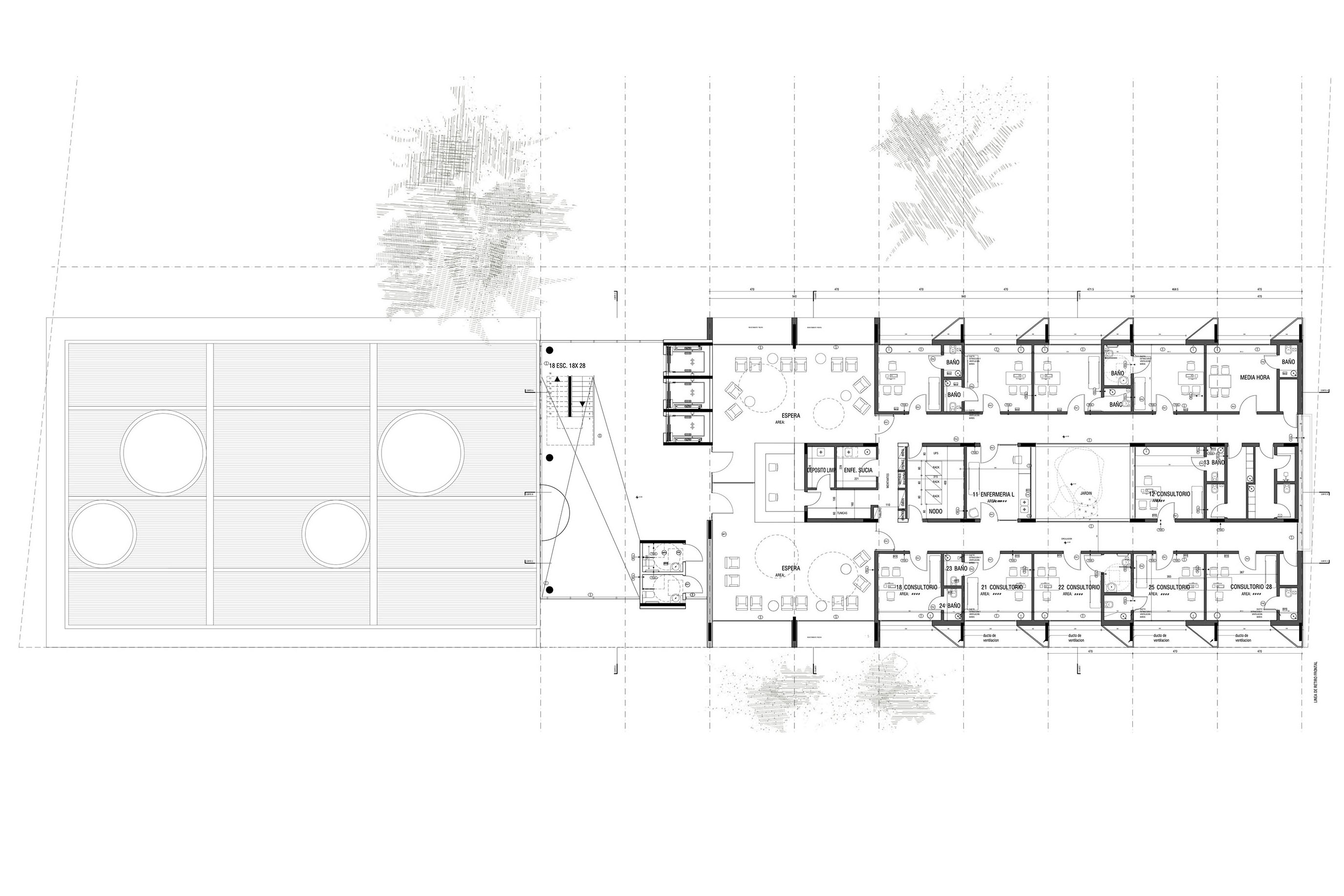
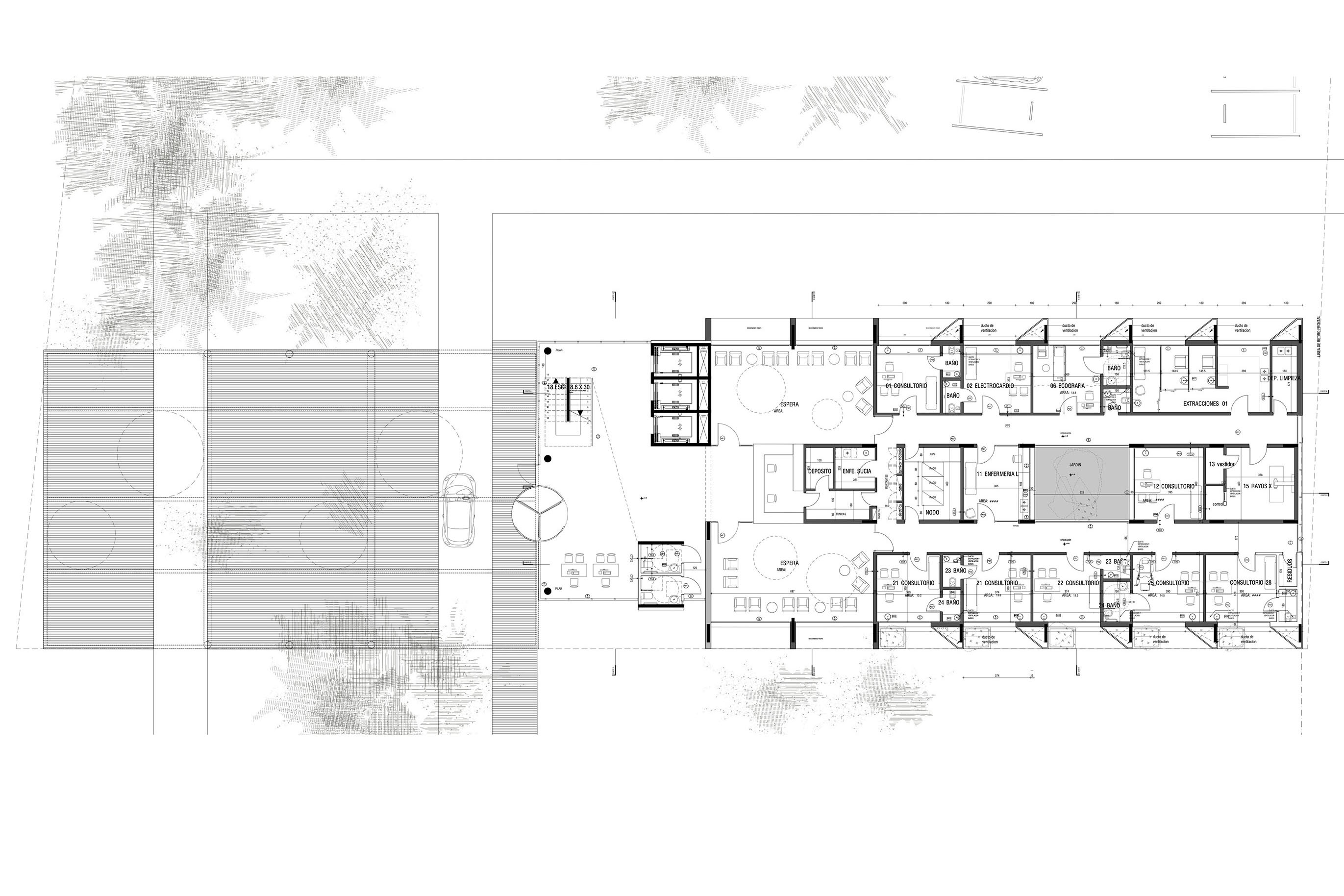
Hospital Británico – Policlínica Punta del Este
Memoria
|
PDF
Proyectos
Oficina
Contacto
fmr.uy
︎
︎