︎
Danza Cotignola Staricco
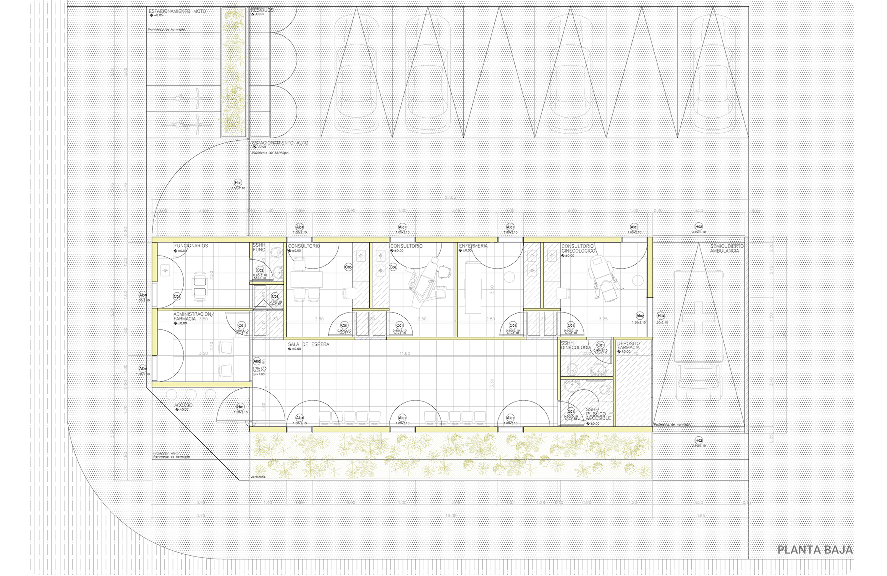
Primer Premio Concurso Internacional - Policlínica en Madera
Memoria
|
PDF
Proyectos
Oficina
Contacto
fmr.uy
︎
︎